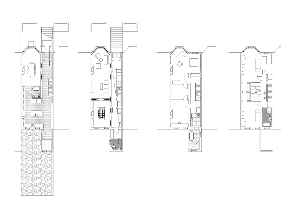
Located in the historic district of Park Slope, this 19th century brownstone belongs to a couple with children, including wood floor expert Stephen Estrin and artist Manju Shandler. The home still contains many of its original carved Victorian wood details. CU A’s boutique renovation modernized the home’s infrastructure across all four floors, including new central air conditioning, updated electrical systems, and a whole house sound system, all while preserving the building’s historic character.
The garden level was completely reconfigured to create a contemporary family kitchen with a breakfast nook and an adjacent dining room. The parlor floor now serves as the main living space and includes a study. The upper two levels contain the family’s bedrooms, updated for comfort and functionality while respecting the brownstone’s 19th century architectural heritage.













